Mark Rakatansky Studio

Projects Writing Profile News Contact
Turning House

Turning House

In the midst of a turn: rather than just setting Turning House on the site, the building sited in the act of positioning and repositioning.

Sugok-ri, South Korea
2007-8

In classic Korean paintings, every manner and mode of pictorial character—person, animal, tree, and rock—although seemingly in a fixed and static state, are depicted in the midst of motion, in the midst of a turn. This turn is what literally and figuratively animates the image, giving it life.

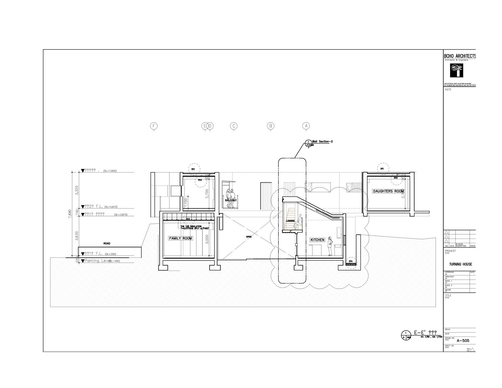
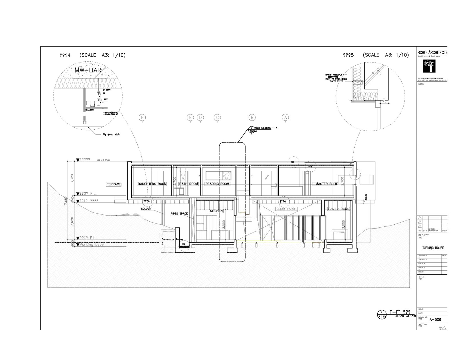
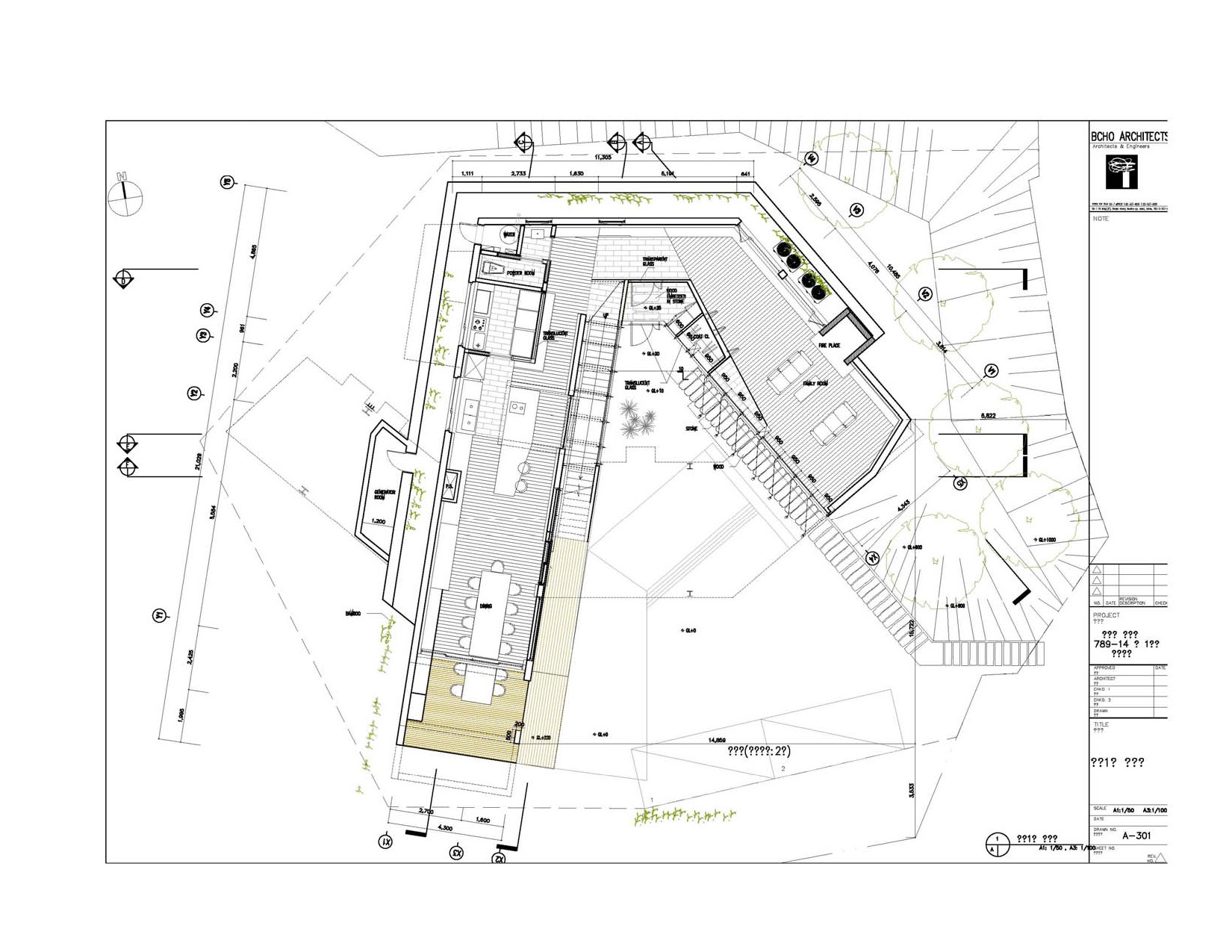
So rather than just setting Turning House on the site, we sited the building in an active positioning and repositioning. The ground floor program of dining area, kitchen, entry, and living room turns along and into the hill, the upper floor of bedrooms and study continues the turn back up the hillside, while the circulation turns along and across this movement. Turning House is thus an enactment of the turning of two tectonic characters, the concrete body of the house and the metal frame circulation spine, a torquing and entwining each around the other through which the central open space is generated. It is the interaction of these two characters that creates the spatial and social exchanges in the house:

  1. The circulation begins along the path from the drive before it gets to the house, the metal frame structure of the spine scraping along and into the side of the concrete volume creating the window that opens the living room to the courtyard.

  2. As the spine turns to rise up to the second level, the joint of its turn pulls the circulation into and then out of the building, creates the entry way and its storage for shoes and coats in an exchange between the comings and goings of inside and out.

  3. In its motion on the way up to the bedroom level the circulation creates another active place of rest at the landing, where a person can sit and turn to visually and verbally engage with the activity of the kitchen.

  4. Pulling into the second floor the circulation spine both merges into the building to create another turning joint, this time of the study, another resting moment for active contemplation, and then emerges out again as it rises up to the roof level.

  5. When the circulation spine reaches the end of its passage up to the roof it into expands again to become the covered roof terrace, as it turns back around toward the auspicious southeast view toward the landmark hills in the distance, and to the view of the house itself and the second level gardens below. For the lone viewer or the gathering of family, this is an active viewing in an active place of rest.

Associate Architect: Byoung Soo Cho Architects, Seoul, Korea.